gammel form, ny frihet

Bjørkelangen

2018

foto: Torunn Stjern

Utgangspunkt (skreddersøm, nybygg på eksisterende grunn)
Vernet tun og krav om gjenbruk av grunnmur. Familie på to voksne, to tenåringer, hund, to katter og tre hester ønsket et «ekte» sveitserhus — og rask oppføring var avgjørende.

Grep

  • Tradisjon + modernisme: Sveitserhusets uttrykk kombineres med «den frie plan» og romlig variasjon.

  • Prefab som prinsipp: Moderne takstoler fører alle laster til ytterveggene og frigjør planløsningen.

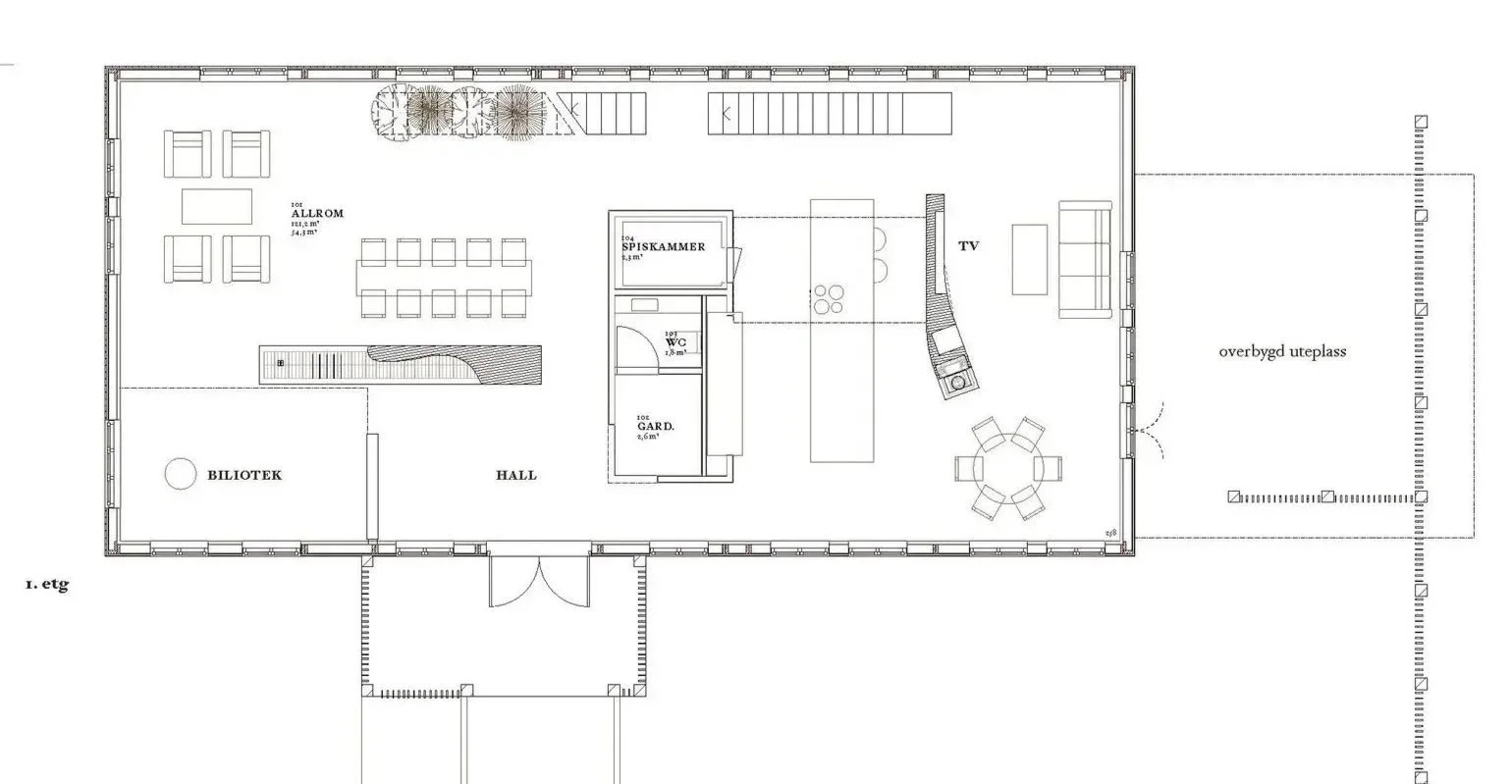
  • Plan: 1. etasje er ett stort, åpent rom sonedelt av to peiser og en funksjonsboks (kjølerom, garderobe, WC). 2. etasje rommer tre separate soverom med egne bad, samt en gjestestue.

  • Lys og høyde: Ytterveggene danner et perforert skall; i kjøkken og bibliotek åpnes det til 2. etasje for vertikale siktlinjer og dagslys.

  • Material- og fargegrep: Ytterveggens innside får klassisk, hvit panel med brystning; innvendige skillevegger er glatte og malt i sterke farger.

Effekt

  • Rask, ryddig bygging på eksisterende fundament — med minimal berøring av vernet miljø.

  • Lyst, åpent interiør der soner og høyder skaper rik romopplevelse innenfor kompakt fotavtrykk.

  • Klar dobbeltlesning: Tradisjonelt sveitserpreg utvendig; samtidsarkitektur i detaljene og interiøret.

  • Fleksibel hverdagslogistikk for en aktiv familie — fra samlet oppholdsrom til private suiter oppe.

Prosess
Nøyaktig oppmåling og tilpasning til eksisterende grunnmur; prefabrikasjon og montasjelogistikk for kort byggetid; detaljering av perforert ytterveg/skall og overganger mot åpne dobbelthøyder; koordinering av overflatepalett (panel/farger) som binder sammen det historiske uttrykket og den moderne planen.